Centre Hospitalier – Hyères
Centre Hospitalier – Hyères
Maître d’Ouvrage :
CENTRE HOSPITALIER INTERCOMMUNAL TOULON
Architecte :
ATELIER RUSSO Architecture
Mission :
Conception - Toutes phases ETUDES + Maîtrise d’Oeuvre d’Exécution
Programme :
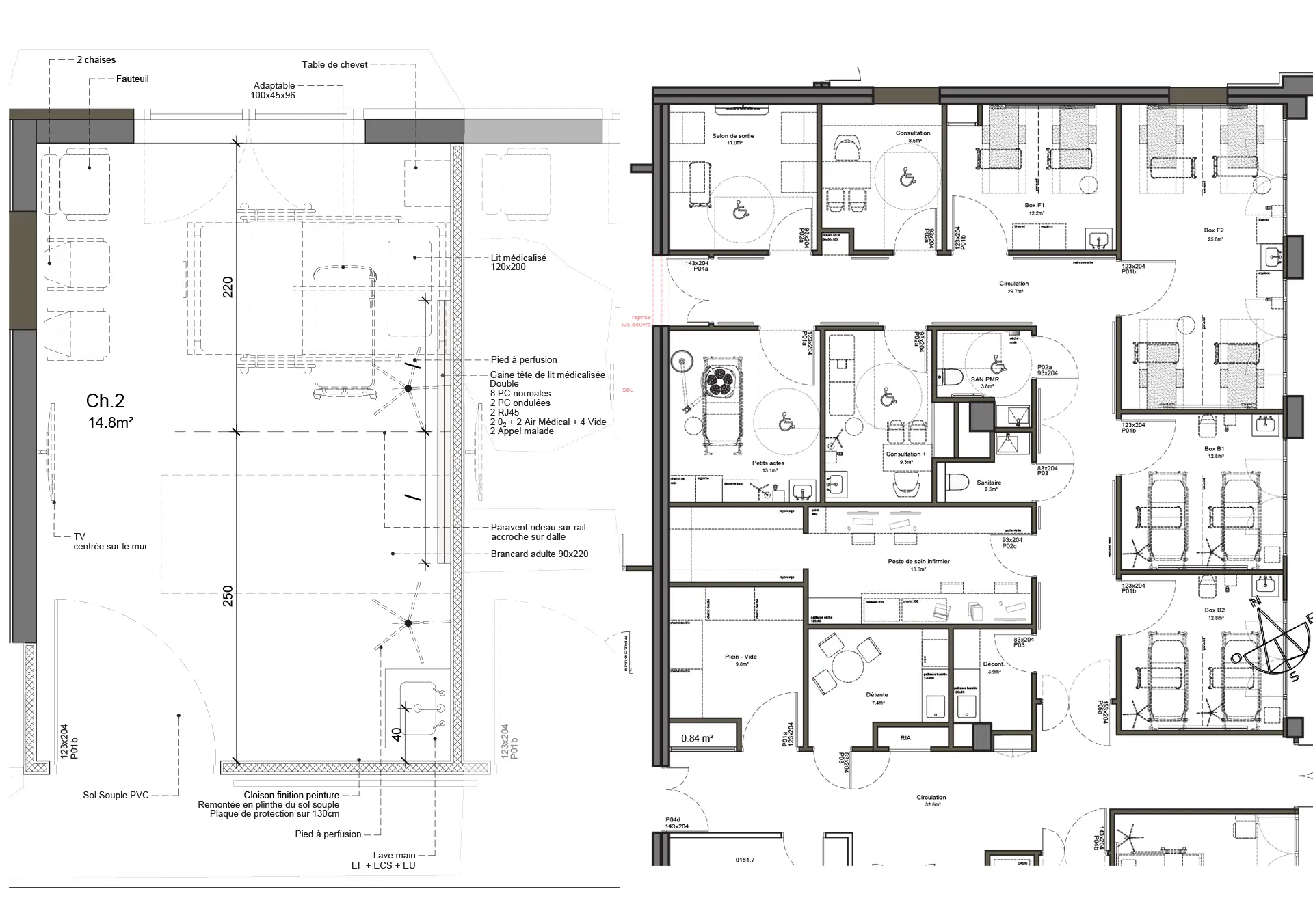
Création d’une unité hôspitalisation courte durée UHCD et d’une unité de médecine ambulatoire UMA
Surface :
600 m² SDP
Montant des travaux :
1 400 000 € HT



